Espace propriétaire
fr

Votre recherche

Nouveauté
Trois-Îlets (97229)

2 pièces - 58 m²

PINEL -T2 VUE MER vision drône sur demande

265 000 €
Ref : T203SG
Découvrir le bien

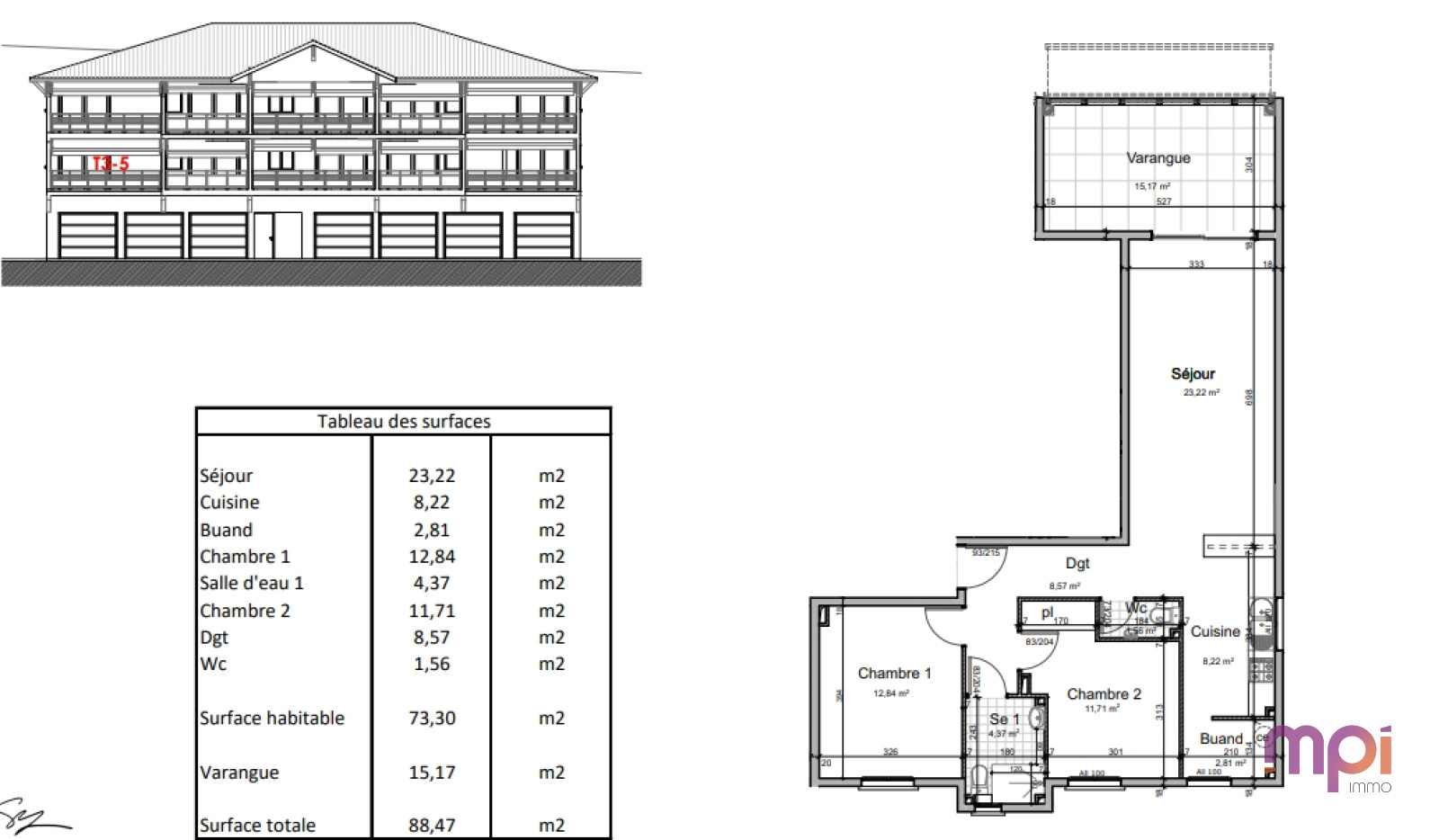
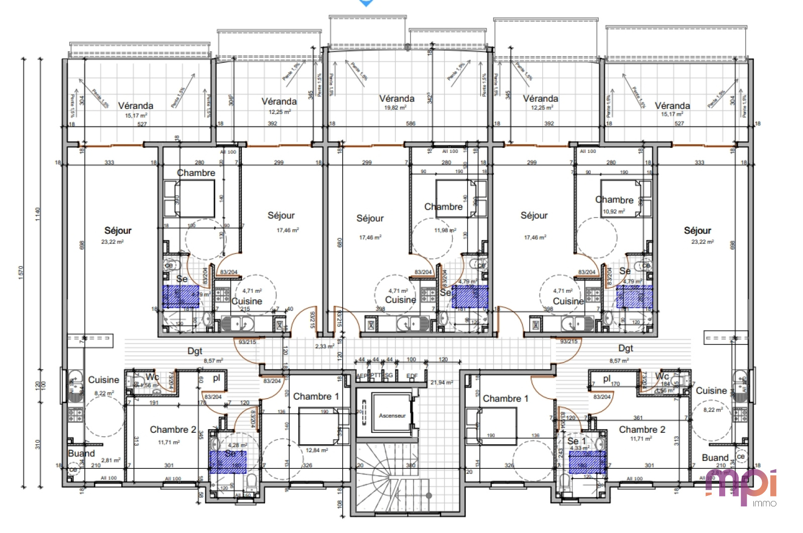
Contactez vite SYLVAIN GARDIN au 06.96.07.36.48. Nombre de lots limités pour cette belle résidence de standing de 10 appartements avec vue sur la baie de FDF, située à L'Anse à L'Ane, à moins de 500m de la plage, des commerces et des navettes maritmes, un T2 situé au 1 er étage avec ascenceur, un séjour avec cuisine américaine aménagée et semi-équipée, une terrasse couverte, une chambre climatisée, une salle d'eau avec wc, pour une surface totale de 58.76m2 (38.94m2 carrez). Place de stationnement dans l'enceinte de la résidence. Début des travaux juillet 2024, livraison fin 2025. Belle prestation dans une résidence de standing sur deux étages. Vidéo du site sur demande: sylvain.gardin@mpi-immobilier.com - Les informations sur les risques auxquels ce bien est exposé sont disponibles sur site: georisques.gouv.fr - Prix honoraires d'agence inclus charge vendeur: 265 000€. Eligible au crédit d'impôt. Les informations sur les risques auxquels ce bien est exposé sont disponibles sur site: georisques.gouv.fr

TRAD_ZEPHYR_Caracteristique TRAD_ZEPHYR_Valeurs
Code postal 97229
Surface habitable (m²) 58 m²
Nombre de chambre(s) 1
Nombre de pièces 2
Nombre de niveaux 1
Vue mer
TRAD_ZEPHYR_Caracteristique TRAD_ZEPHYR_Valeurs
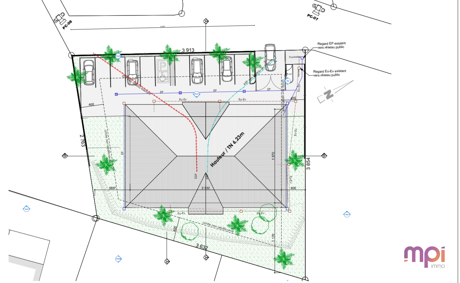
Exposition Ouest
Quartier ANSE A L ANE
TRAD_ZEPHYR_Caracteristique TRAD_ZEPHYR_Valeurs
Prix de vente honoraires TTC inclus 265 000 €
DPE GES
  • Commerces et santé
  • Loisirs
  • Ecoles
  • Transports
  • Pratique
Contacter pour ce bien
L'agence
Téléphone 06 96 90 09 39
Adresse
ZA Taupinière 97223 Le Diamant

* Champ obligatoire

Les informations recueillies sur ce formulaire sont enregistrées dans un fichier informatisé par La Boite Immo agissant comme Sous-traitant du traitement pour la gestion de la clientèle/prospects de l'Agence / du Réseau qui reste Responsable du Traitement de vos Données personnelles.
La base légale du traitement repose sur l’intérêt légitime de l'Agence / du Réseau.
Elles sont conservées jusqu'à demande de suppression et sont destinées à l'Agence / au Réseau.
Conformément à la loi « informatique et libertés », vous pouvez exercer votre droit d'accès aux données vous concernant et les faire rectifier en contactant l'Agence / le Réseau.
Si vous estimez, après avoir contacté l'Agence / le Réseau, que vos droits « Informatique et Libertés » ne sont pas respectés, vous pouvez adresser une réclamation à la CNIL.
Nous vous informons de l’existence de la liste d'opposition au démarchage téléphonique « Bloctel », sur laquelle vous pouvez vous inscrire ici : https://www.bloctel.gouv.fr 
Dans le cadre de la protection des Données personnelles, nous vous invitons à ne pas inscrire de Données sensibles dans le champ de saisie libre
Ce site est protégé par reCAPTCHA, les Politiques de Confidentialité et les Conditions d'Utilisation de Google s'appliquent.

Découvrir nos outils