Espace propriétaire
fr

Votre recherche

Nouveauté
Trois-Îlets (97229)

2 pièces - 58,76 m²

T2 TROIS-ILETS - Nouvelle résidence vue mer- PINEL OUTRE-MER

265 000 €
Ref : T203
Découvrir le bien

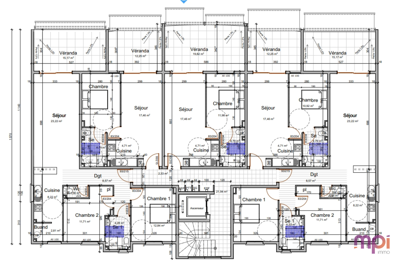
Contactez vite SYLVAIN GARDIN au 06 96 07 36 48! Les travaux ont commencé pour cette belle résidence de standing de 10 appartements avec vue sur la baie de Fort-de-France, située à L'Anse à L'Ane, à moins de 500m de la plage, des commerces et des navettes maritimes. Il s'agit d'un T2 situé au 1 er étage avec ascenseur composé d'un séjour avec cuisine américaine aménagée et semi-équipée, d'une terrasse couverte, d'une chambre climatisée, d'une salle d'eau avec wc, pour une surface totale de 58.76m² (38.94m² carrez). Place de stationnement dans l'enceinte de la résidence. Début des travaux juillet 2024, livraison fin 2025. Belles prestations pour une résidence de standing sur deux étages. Etat d'avancement: le premier niveau est terminé (garages). Eligible au crédit d'impôts.

Prix honoraires d'agence inclus: 265 000€ - Honoraires d'agence à la charge du vendeur.

Lien de téléchargement de la vidéo du programme sur demande auprès de Sylvain, joignable au 06 96 07 36 48 ou par mail à sylvain.gardin@mpi-immobilier.com (Agent Commercial 2021 000124 FDF)

Les informations sur les risques auxquels ce bien est exposé sont disponibles sur site: georisques.gouv.fr -

TRAD_ZEPHYR_Caracteristique TRAD_ZEPHYR_Valeurs
Code postal 97229
Surface habitable (m²) 58,76 m²
Surface loi Carrez (m²) 38,94 m²
Nombre de chambre(s) 1
Nombre de pièces 2
Etage 1
Nombre de niveaux 1
Ascenseur OUI
TRAD_ZEPHYR_Caracteristique TRAD_ZEPHYR_Valeurs
Nb de salle d'eau 1
Cuisine Américaine
Type de cuisine SEMI-EQUIPEE
Interphone OUI
Quartier ANSE A L ANE
TRAD_ZEPHYR_Caracteristique TRAD_ZEPHYR_Valeurs
Copropriété OUI
Lot n° 10
TRAD_ZEPHYR_Caracteristique TRAD_ZEPHYR_Valeurs
Prix de vente 265 000 €
Les honoraires d'agence seront intégralement à la charge du vendeur  
DPE GES
  • Commerces et santé
  • Loisirs
  • Ecoles
  • Transports
  • Pratique
Contacter pour ce bien
L'agence
Téléphone 06 96 90 09 39
Adresse
ZA Taupinière 97223 Le Diamant

* Champ obligatoire

Les informations recueillies sur ce formulaire sont enregistrées dans un fichier informatisé par La Boite Immo agissant comme Sous-traitant du traitement pour la gestion de la clientèle/prospects de l'Agence / du Réseau qui reste Responsable du Traitement de vos Données personnelles.
La base légale du traitement repose sur l’intérêt légitime de l'Agence / du Réseau.
Elles sont conservées jusqu'à demande de suppression et sont destinées à l'Agence / au Réseau.
Conformément à la loi « informatique et libertés », vous pouvez exercer votre droit d'accès aux données vous concernant et les faire rectifier en contactant l'Agence / le Réseau.
Si vous estimez, après avoir contacté l'Agence / le Réseau, que vos droits « Informatique et Libertés » ne sont pas respectés, vous pouvez adresser une réclamation à la CNIL.
Nous vous informons de l’existence de la liste d'opposition au démarchage téléphonique « Bloctel », sur laquelle vous pouvez vous inscrire ici : https://www.bloctel.gouv.fr 
Dans le cadre de la protection des Données personnelles, nous vous invitons à ne pas inscrire de Données sensibles dans le champ de saisie libre
Ce site est protégé par reCAPTCHA, les Politiques de Confidentialité et les Conditions d'Utilisation de Google s'appliquent.

Découvrir nos outils